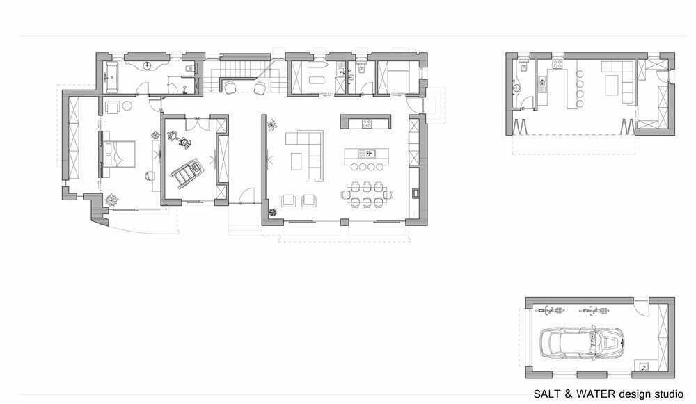
U jednom modernom porodičnom domu u Rumi objedinili smo luksuz sa energetskom efikasnošću. Iz tog razloga je ovaj prostrani objekat maksimalno okrenut ka jugu i ispunjen pažljivo odabranim materijalima. Pogledajmo ga detaljnije.
Tendencija da se od samog starta uradi po principima energetske efikasnosti potekla je od naše klijentkinje. Enterijer kuće uređen je u modernom stilu i odiše luksuzom i komforom. Ideja je bila da se organizuje prostrani centralni prostor za dnevni boravak u koji je uključena kuhinja, trpezarija i dnevna soba. U dizajn smo implementirali i ideju spajanja spoljašnjeg okruženja sa enterijerom, pa se tako veliki stakleni paneli na južnoj strani mogu otvoriti i spojiti sa delom dvorišta predviđenim za opuštanje po lepom vremenu.
Pored centralnog prostora, u prizemlju se nalaze ulazni hol, soba za vežbanje, spavaća soba sa prostranim garderoberom i kupatilom, toalet, ostava i vešernica. Do prvog sprata dolazi se pomoću stepenica čiji su zidovi pretvoreni u dekorativne površine i zajedno sa rasvetom čine simpatičnu lounge zonu opremljenu luksuznim nameštajem. Ovaj prostor može se koristiti i kao svojevrsna čekaonica za saradnike sa kojima radi naša klijentkinja, budući da se na spratu nalazi njena kancelarija.
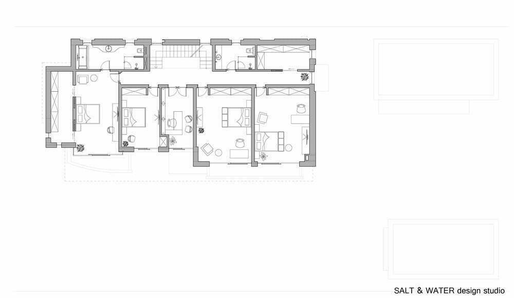
Pored pomenute kancelarije, na spratu se nalazi master spavaća soba sa velikim kupatilom i garderoberom, tri spavaće za ostale članove proširene porodice, kupatilo i dodatna ostava.
Po želji naše klijentkinje, fasada ka ulici je potpuno zatvorena. Gotovo cela prednja strana fasade je pokrivena staklenim površinama, kliznim prozorima i vratima brenda Alumil, model S650. Ovaj sistem kreiran je tako da poboljša energetske performanse objekta. Iako su ovi proizvodi sami po sebi izuzetno teški, mehanika kojom se pokreću je izuzetno napredna, te se vrlo lako koriste i pokreću.
Dodatni objekti na placu su garaža i prostrana letnja kuhinja. Letnja kuhinja može da zadovolji potrebe proširene porodice, a sadrži kuhinju sa trpezarijom i skladištem. Ispred prednje fasade na poziciji gde se nalazi dnevna soba, predviđeno je mesto za sedenje i odmor u bašti sa automatizovanom tendom na rasklapanje. Na nekoliko pozicija na fasadi glavnog i pomoćnih objekata nalazi se i dvorišno osvetljenje. Ono poseduje senzore koji registruju pokret. Predviđeno je da će na placu biti ugrađena toplotna pumpa sa geotermalnom sondom koja obezbeđuje podno grejanje sa automatskim hlađenjem.
Korišćeno je dosta kamena i drugih prirodnih, mahom luksuznih materijala. Pri izgradnji će se koristiti isključivo prirodni materijali poput kamena (u enterijer će biti uključen i mermer) i Wienerberger Porotherm W.i. Plan blokova od 38cm u koje je već ugrađena kamena vuna. Tako dodatna izolacija na spoljnoj fasadi neće biti potrebna. Enterijer karakterišu svetli tonovi, a od boja smo odabrali Valpaint farbe za specijalno ukrašavanje zidova i luksuzne tapete belgijske firme Omexco. Specijalnu notu uređenju daju i elementi enterijera unikatno dizajnirani za ovaj prostor. U pitanju su drvene zidne obloge sa floralnom šarom u srebrnoj boji u master spavaćoj sobi, dekorativni zid obložen kamenom u hodniku iza kuhinje, specijalno dizajnirani klub stočići u dnevnoj sobi i drugo.
Na ovom projektu sa nama je radio konsultant za energetsku efikasnost Igor Lukić, dipl.inž. građevine, inače direktor projektnog biroa Limis iz Rume.
